小姐威客兼职网官网入口,凤楼论坛佛山桑拿0757sn论坛,楼外楼论坛,小红楼免费信息论坛

茶馆茶楼软装
美容院软装
咖啡厅软装
店面软装设计
办公室软装
酒吧软装设计
民宿软装设计
会所软装设计
别墅软装设计
住宅软装设计
样板间软装
售楼处软装
餐饮设计

北京四室两厅三卫165m²软装设计解析

  • 发布时间:2023-10-24 17:32:50
  • 浏览次数:

  

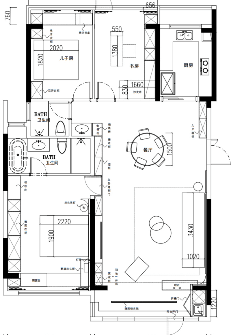
  面 积 | 165㎡

  01.平面方案

  户型 :四室两厅三卫

  优点:

  1、正南向采光保证日间室内明亮有光照,且不会受到阳光直照;

  2、餐客一体,生活方便;

  3、阳台较长,具备基础晾晒功能;

  4、主卧套房设计保证业主居住隐私感,增加居住便利性。

  缺点:

  1、入户即是厅,缺少过渡空间;

  2、全屋收纳空间较少;

  3、主卧床正对卫生间。

  设计思路:

  1、客厅与阳台考虑打通,地面通铺;

  2、主卧床调换床的位置到东侧,离卫生间远些;

  3、儿子房小阳台打通,增加房间面积;

  4、书房阳台地面找平同室内高度,小阳台不封窗;增加沙发床也可以当做临时的房间。

  02. 设计效果

  △ 客餐厅

 

  △ 主卧


?
服务热线:010 — 85376870
手机号码:15910876795
电子邮箱:liangdiandesign@163.com
公司地址:北京市朝阳区新管庄科技园二期5号楼101

联系我们