
面 积 | 130㎡
平面分析
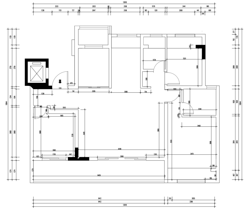
● 原始平面 ●
户型 :四室两厅两卫
优点:
1、独立门厅,有预留较大鞋柜位置;
2、客餐厅开间6.2M空间视线开阔;
3、9.3M超长阳台,活动区域充足;
4、户型方正 南北通透。
缺点:
书房区域需合理规划,充足利用。
● 平面方案 Ⅰ ●
设计思路:
1、入户门厅增加鞋帽柜,与餐边柜相连,整体性更强;
2、客餐厅一体式,选择三人位沙发搭配边椅,更加灵活;以沙发作为软隔断,餐厅根据家庭需求选择多人位;
3、保留三房,主卧作套房设计,其余两间根据需求进行定义规划;靠近厨房的房间较小,可以作为多功能书房使用。
● 平面方案 Ⅱ ●

设计思路:
1、将客餐厅和阳台打通,扩大客餐厅的可利用空间;
2、狭长的阳台可以用作休闲和洗衣晾晒,如果喜欢饮茶喝酒的业主也可以增加一个小吧台,非常的惬意。
软装意向分析
● 玄关 ●

玄关处的装修要集美观度与实用度为一体,鞋柜做到顶设计,***大程度地满足鞋子收纳需求,鞋柜底部留空,方便日?;恍⌒?,玄关处采光度较弱,在鞋柜底部和留空处设计好灯带,增加玄关处的采光照明。
● 客餐厅 ●


客厅的设计以简约为主,整体色系不失现代风韵,选用岩板做电视背景墙设计,内嵌电视机,很好的隐藏了电视的繁琐线路,提升客厅的美观度,背景墙下方留空,用于壁炉的安装和装饰画的摆放,电视收纳柜来增加客厅中的收纳面积;
岛台的存在连接了餐厅和厨房,让厨房不在是一个人的做饭空间,让餐桌不再只是一个吃饭的地方,岛台集收纳、料理、用餐与日常休闲和交流情感于一体,让整个家庭氛围更加的和谐。
● 主卧 ●
主卧面积大,拥有独立的衣帽间和卫生间,能满足业主夫妇的需求,并能充分?;ぶ魅说目占湟?,主卧中的衣帽间集梳妆、打扮为一体,幸福感大大提升,通过移门进入衣帽间,空间隐私性更好,多种功能整合到一个空间,提高了空间利用率,主卧套房的相对独立性,也是品质生活的象征。
● 次卧 ●
次卧采用榻榻米的形式,才能***大化的利用空间,充分满足居住睡眠,学习休闲,和收纳等多重功能。
● 儿童房 ●
儿童房不仅仅是儿童睡觉的地方,更是一个学习成长空间,因此也需要承担更多的功能,合理的规划好空间布局,采用明亮度高的色彩,活泼大胆的配色,给孩子创造一定的想象空间,放置一些玩偶可以对孩子的成长和睡眠有帮助,也会是孩子的一个倾诉玩伴。