今天为大家分享一些隔墙类的知识。本文我们主要讲解两种常见的轻质隔墙:轻钢龙骨罩面板隔墙和板材隔墙。
一、材料

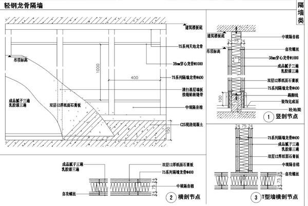
龙骨材料:
轻钢龙骨主件有沿顶沿地龙骨、加强龙骨、竖(横)向龙骨、横撑龙骨。
轻钢龙骨配件:
支撑卡、卡托、角托、连接件、固定件、护角条、压缝条等。
天、地龙骨断面类型:(单位:mm)
50*40、75*40、 100*40 、150*40;
竖龙骨断面类型:
48.5*50、73.5*50、98.5*50、148.5*50;
贯通龙骨断面类型:
38*12;
紧固材料:
射钉、膨胀螺栓、镀锌自攻螺丝(12mm厚石膏板用25mm长螺丝,两层12mm厚石膏板用35mm长螺丝)、木螺丝等。
填充材料:
玻璃棉、矿棉板、岩棉板等,按设计要求选用。
二、工艺流程

工艺节点↑
弹线→做地梁(有设计要求时)→安装天地龙骨→竖向龙骨分档→安装竖向龙骨→管线布置→安装横向卡档龙骨→安装门洞口框→安装一侧罩面板→安装隔音棉→安装另一侧罩面板→验收
三、施工工艺
1、弹线在基体上弹出水平线和竖向垂直线,以控制隔断龙骨安装的位置、龙骨的平直度和固定点。

地梁支?!?/p>
2、设计有要求时,按照设计要求在地面按照弹线支模,浇筑地梁;

安装罩面板↑
3、门窗或特殊节点处,应使用附加龙骨,加强其安装应符合设计要求。

填充隔音材质↑
石膏板缝与对面的板缝不得布在同一根龙骨上。安装防火、隔音等材料,与另一侧石膏板同时进行填入,填充材料应铺满、铺平。
第2层板的安装方法同第1层,但必须与第1层板的板缝错开,接缝不得布在同一根龙骨上。
4、隔断的下端如用木踢脚板覆盖,隔断的罩面板下端应离地面20~30mm;如用大理石、水磨石踢脚时,罩面板下端应与踢脚板上口齐平,接缝要严密。
好了,以上就是轻钢龙骨的隔墙工艺,再来回顾一下:
弹线→ 做地梁(有设计要求时)→ 安装天地龙骨→ 竖向龙骨分档→ 安装竖向龙骨→ 管线布置→ 安装横向卡档龙骨→ 安装门洞口框→ 安装一侧罩面板→ 安装隔音棉→ 安装另一侧罩面板→ 验收
下面我们来看另一种轻质隔墙。
轻质板材隔墙

板材隔墙↑

板材隔墙↑
工艺流程:
施工放线 → 安装固定件 → 配制胶粘剂 → 安装隔墙板→检查平整垂直→布线管→板缝处理→板面修补→隔墙验收→面层处理

安装固定件:
墙板与地面、顶面、柱及墙面的连接应用U型或L型卡件固定。在与地面、顶板、梁连接时,卡件应固定在条板的接缝处; 墙的高度每米打一个卡件;卡件应用射钉枪固定。
配制胶粘剂:
胶粘剂要随配随用。配制的胶粘剂应在30min内用完。

安装隔墙板↑
检查平整垂直:

在安装过程中随时用2m靠尺及塞尺测量墙面的平整度,用2m托线板检查板的垂直度。要确保符合要求,如有不合理此阶段可以适当调整。
布线管:

安装墙体内线管、线盒以及填充材料,隔墙板安装完毕,待粘接剂干硬后,方可在墙面上钻孔、扩孔。
板缝处理:

隔墙板安装后,检查所有缝隙是否粘结良好,有无裂缝,如出现裂缝,应查明原因后进行修补。
面层处理:
***后涂面层涂料即可。如贴瓷片,无需刮灰,直接用水泥浆将瓷片贴在墙板上即可,也可以直接粘贴墙纸,木饰板等。
